HOMEPAGE
PROJECTS
Residential
Commercial
Interiors
OUR COMPANY
About Us
Our Team
CONTACT
CALL 210.408.7553
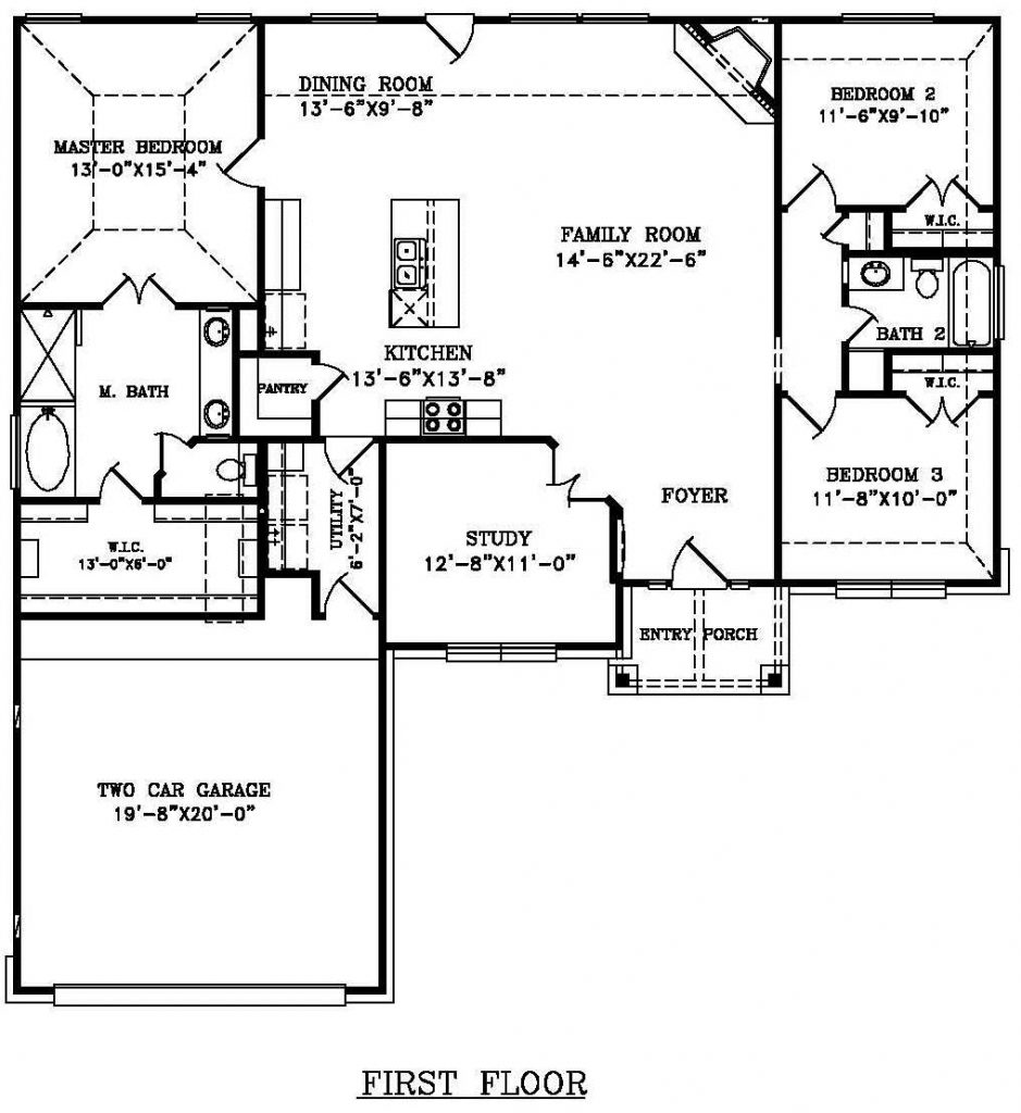
1594
September 26, 2019
1912
September 26, 2019
0
Published by
MSA
at
September 26, 2019
Categories
Tags
MSA